Rehabilitación

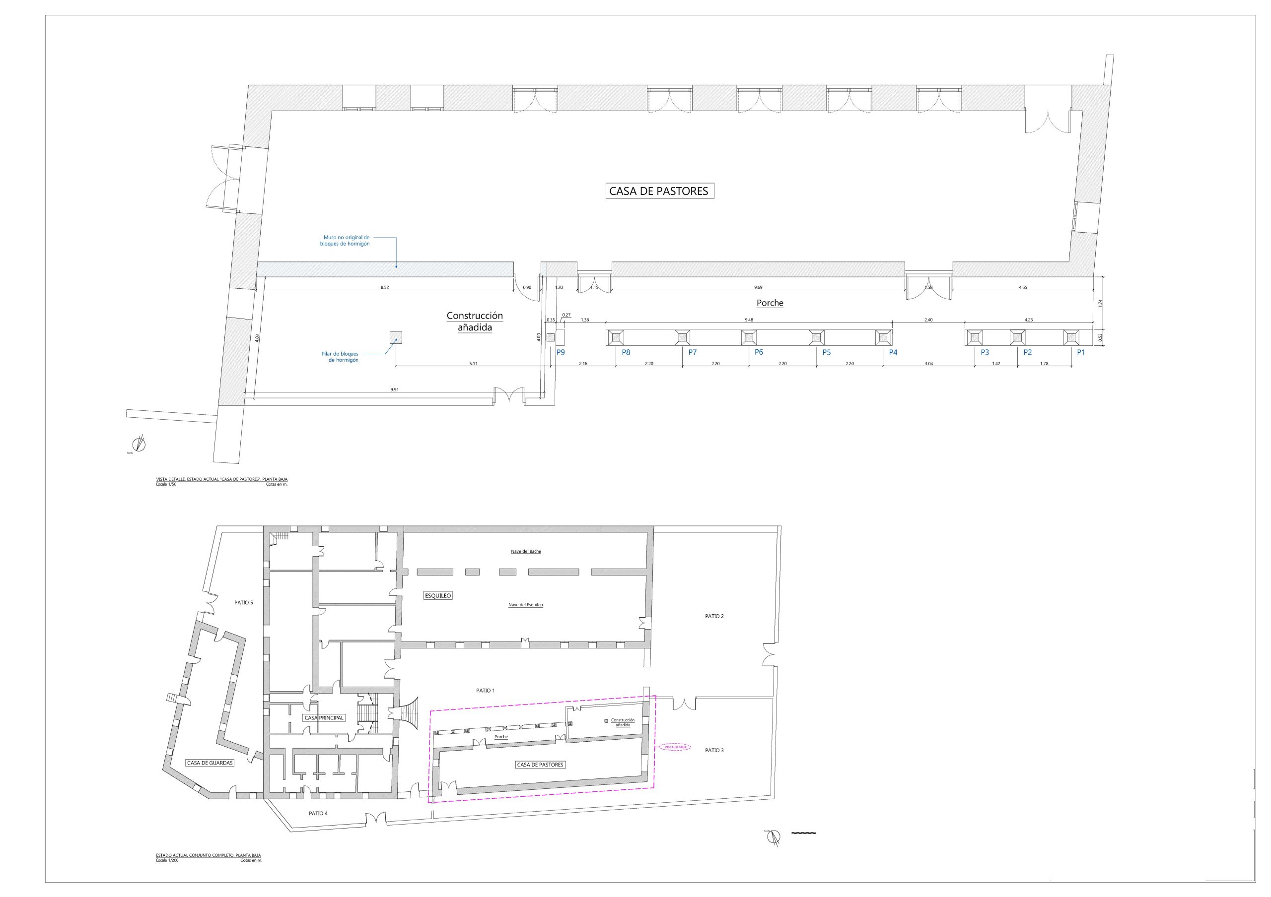
Conjunto BIC Casa del Esquileo

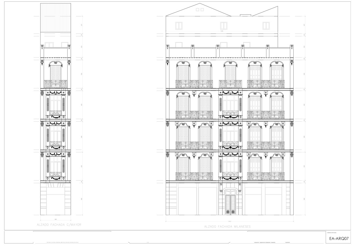
Milaneses

San Bueanventura